Price Range: From to

Compare Listings

Description

For SALE:

 

4S Woodlands  Street 31

  • 84sqm
  • Move In
  • Marsiling MRT
  • FuChun Community Centre
  • Primary and Secondary School
  • Food Court

 

**Quota above submit to HDB in June 2019

 

Alex Teoh

9117 2211

alextcg@gmail.com

CEA Reg. No. R003995D

PropNex Realty Pte Ltd – (L3008022J)

  • Address: 312 Woodlands Street 31
  • City: Woodlands
  • State/county: HDB Estates, Outside Central Region
  • Zip/Postal Code: 730312
  • Country: Singapore

Detail

  • Property ID: 2437
  • Price: S$319,999/$354 psf (Built 904 sqf)
  • Property Size: 904 sq Ft
  • Bedrooms: 3
  • Bathrooms: 2

Additional details

  • Property Name: Woodlands Street 31
  • Property Type: HDB 4 Rooms
  • Furnish: Not Furnish
  • Model: Simplified
  • Room Type: Whole House
  • Tenure: LEASEHOLD/99 years

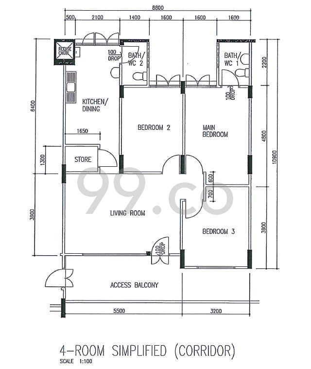
Floor plans

Floor Plan

360° Virtual Tour